Search

Leave a Message

Thank you for your message. We will be in touch with you shortly.

Explore Our Properties

Property Description

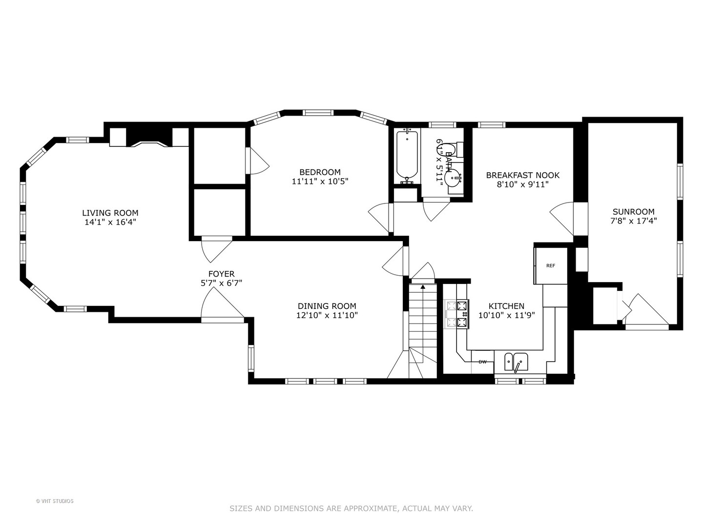
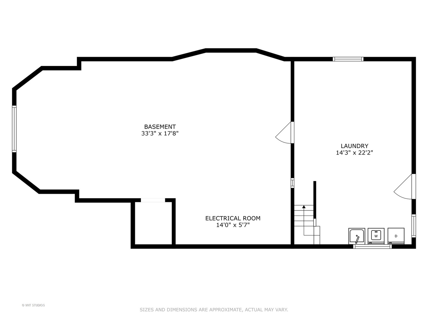
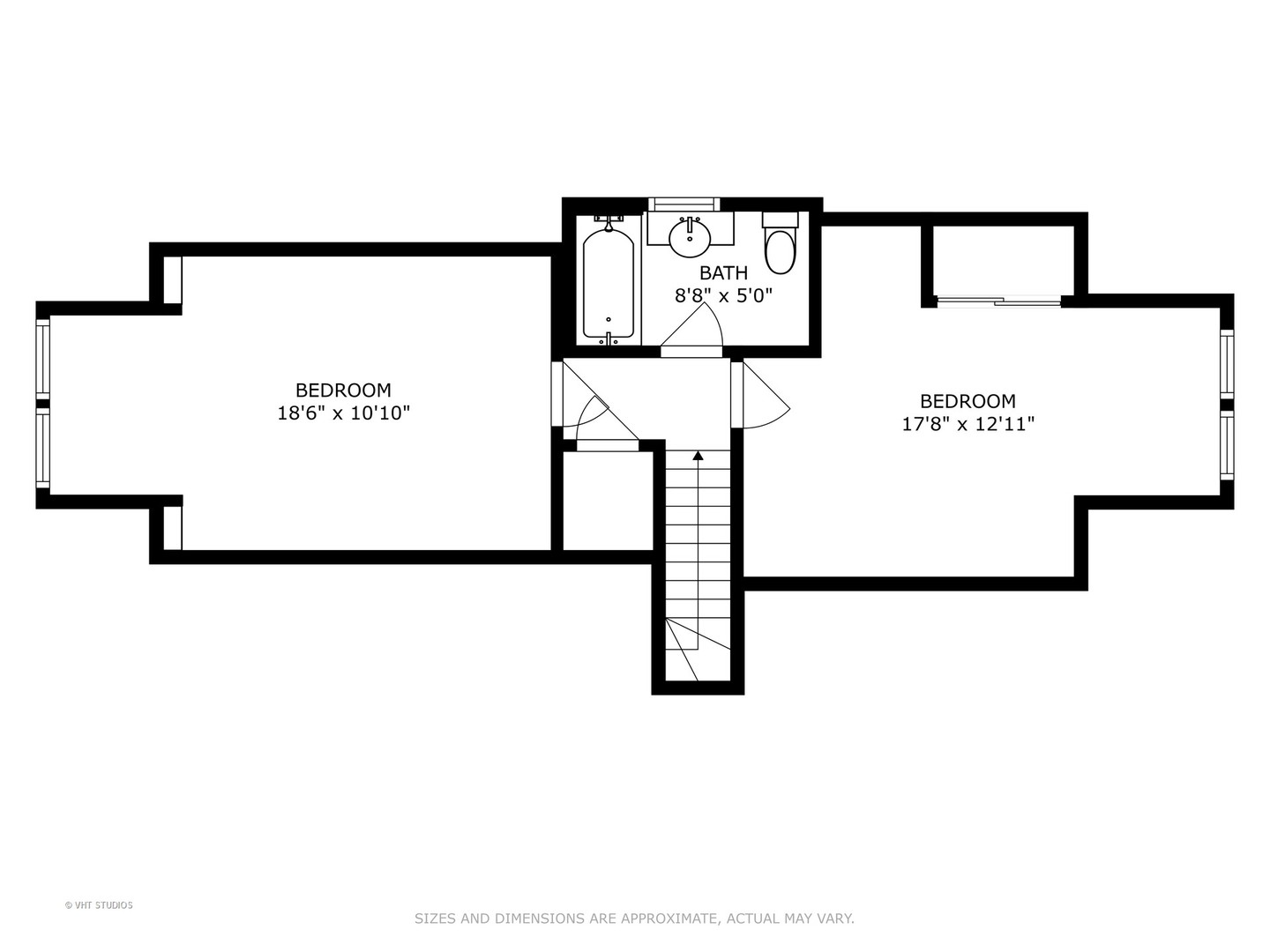
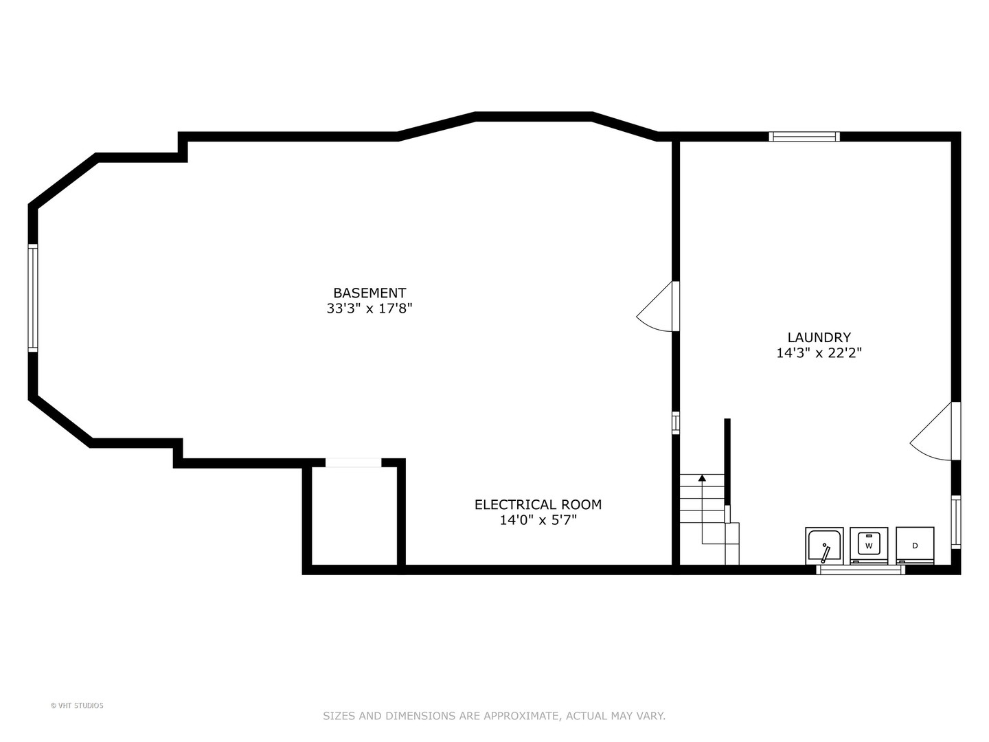
This classic south-facing bungalow blends vintage charm with modern updates on a beautiful tree-lined street in Belmont Craigin. Step into the inviting semi-octagonal living room, framed by the warm and timeless original stained glass windows and built-in decorative fireplace. Separate dining room offers the perfect space for dinner parties. The thoughtfully updated kitchen - featuring granite countertops, white cabinetry, and stainless steel appliances - flows into a cozy breakfast nook (perfect place for your morning coffee). All three bedrooms are well sized, with one featuring cozy pine-paneled walls. An attached heated porch serves as a versatile mudroom and flex space. The unfinished basement is perfect as is as a casual rec room or ready for your updates. NEW ROOF with transferable warranty, new water heater, newer garage roof! MULTIPLE OFFERS RECEIVED - H&B by Monday 5:00. Sellers would like to close 4/18

Overview

Property Status
Sold
Lot Size
3,750.52 Sq.Ft.
MLS ID
12297826
Property Type
Residential
Year Built
1928

Features & Amenities

Architecture Styles
Bungalow
Garage Spaces
2.0
Water Source
Lake Michigan
Parking
Garage Door Opener, On Site, Garage Owned, Detached, Garage
Heat Type
Steam
Air Conditioning
Wall Unit(s)
Laundry Room
In Unit, Sink
Appliances
Range, Microwave, Dishwasher, Refrigerator, Washer, Dryer, Disposal
Other Interior Features
1st Floor Bedroom, 1st Floor Full Bath, Built-in Features
Sewer
Public Sewer
School District
299
Sales Price
$428,500
Real Estate Tax
$5,845/yr

Downloads

5244 W George Street

Schedule a Tour

We would love to help you see this beautiful home! As a full-service brokerage, we can help you tour. Please submit an offer, and answer questions about the buying process.

Thank you

for your interest in 5244 W George Street, Chicago, IL 60641

5244 W George Street
Navigate

I'm Interested In

5244 W George Street

or
  • CallJazmine DeLeon

    License #475.191269

    (773) 432-0200
  • Browse Our

    Featured Properties

    Explore our active properties below or contact us to schedule a private showing.

    • 1717 S Prairie Avenue Unit: 2301 Active Under Contract

      $850,000

      1717 S Prairie Avenue Unit: 2301, Chicago, IL 60616

      MLS #: 12600995

      • 3 Beds
      • 3 Baths
      • 2,400 Sq.Ft.
    • 2235 W Maypole Avenue Unit: 101 For Sale

      $380,000

      2235 W Maypole Avenue Unit: 101, Chicago, IL 60612

      MLS #: 12619632

      • 3 Beds
      • 2 Baths
      • 1,600 Sq.Ft.
    • 900 LEE Street Unit: 202 For Sale

      $330,000

      900 LEE Street Unit: 202, Des Plaines, IL 60016

      MLS #: 12621603

      • 2 Beds
      • 2 Baths
      • 1,250 Sq.Ft.
    • 111 S Morgan Street Unit: 518 Active Under Contract

      $325,000

      111 S Morgan Street Unit: 518, Chicago, IL 60607

      MLS #: 12605579

      • 1 Bed
      • 1 Bath
      • 850 Sq.Ft.
    • 5232 N Campbell Avenue Unit: 1A Active Under Contract

      $320,000

      5232 N Campbell Avenue Unit: 1A, Chicago, IL 60625

      MLS #: 12603062

      • 2 Beds
      • 2 Baths
    • 3849 W Washington Boulevard For Sale

      $43,960

      3849 W Washington Boulevard, Chicago, IL 60624

      MLS #: 12391981

    View All Properties

    Follow Us On Instagram